Loading...
Loading...
Loading...












plotted development
by JR Housing
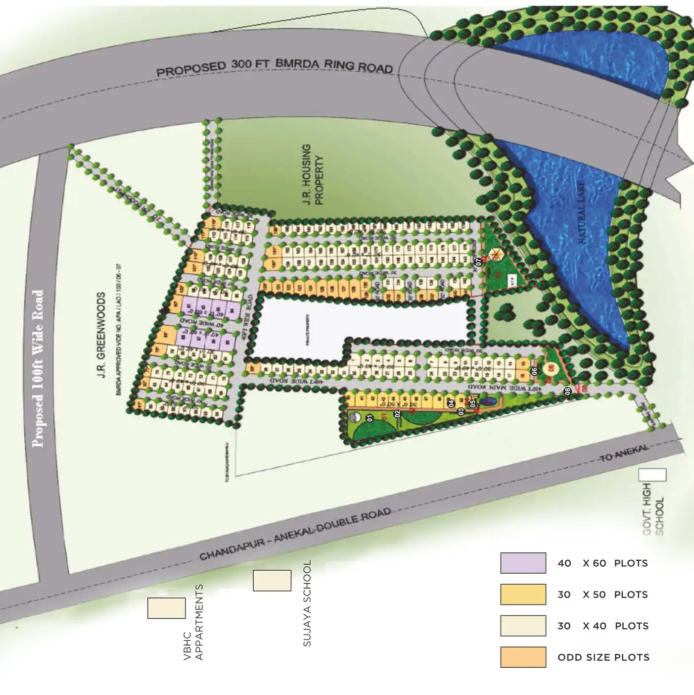
JR Greenwoods is an unique residential enclave, one of its kind in Bangalore, spread over 11 acres, fully developed with excellent infrastructure and amenities.



No inventory listed for this project
As soon as owners and agents list homes in this complex, they'll appear here.
utility
1 nearby
Narayana Health City
6 kms
Fill out the form and let PropHunt.ai match you with the perfect commercial or residential space in JR Greenwoods
Where is Chandapura located in Bangalore?
Chandapura is a rapidly developing locality situated in South Bangalore, Karnataka. It is strategically located on the Bangalore-Hosur Road (NH 44), making it a gateway to Electronic City and other major industrial and IT hubs. Its proximity to the Karnataka-Tamil Nadu border also adds to its significance as a growing residential and commercial area.
What are the connectivity options available in Chandapura?
Chandapura boasts excellent connectivity via the Bangalore-Hosur Road (NH 44), providing seamless access to Electronic City, Koramangala, and other parts of Bangalore. The upcoming Namma Metro Yellow Line extension to Bommasandra will further enhance public transport options, significantly improving daily commutes for residents and boosting accessibility.
What kind of social infrastructure does Chandapura offer?
Chandapura is well-equipped with essential social infrastructure. It hosts reputable educational institutions like Spurthy Group of Institutions and Spurthy Global School, and healthcare facilities such as ESIC Hospital Bommasandra. Residents also have access to various shopping centers, supermarkets, and entertainment options for daily needs and leisure.
Is Chandapura a good residential area for families?
Yes, Chandapura is increasingly becoming a preferred residential destination for families due to its blend of affordability, developing infrastructure, and peaceful environment. The presence of good schools, hospitals, and recreational spaces, coupled with its proximity to employment hubs like Electronic City, makes it an attractive choice for family living.
What are the real estate investment opportunities in Chandapura?
Chandapura offers diverse real estate investment opportunities, including apartments, villas, and plotted developments. The area is witnessing significant growth, driven by its strategic location near Electronic City and ongoing infrastructure projects. Properties here are generally more affordable compared to central Bangalore, promising good appreciation potential for investors.
Chandapura- Anekal Road, Byagadadhenahalli, Bengaluru Urban, Karnataka
JR Housing
Developer
education
2 nearby
Sujaya School
Nearby
Govt. High school
Nearby
transit
1 nearby
Metro Station at Bommasandra
6 kms
offices
1 nearby
Electronics city
11.5 kms
No top agents listed yet for this project.
Be the first one to get featured as a top agent.
JR Housing
Developer / Promoter
Verified Deals. Expert Brokers. Zero Guesswork.
AI-powered matching meets India's most trusted broker network. Buy or sell property with complete confidence.
Can you tell me about new residential projects in Chandapura?
Chandapura features several new and ongoing residential projects catering to various budgets. Notable developments include Sipani Royal Heritage Phase I by Sipani Properties, offering 1, 2, and 3 BHK apartments with modern amenities, and Abhee Pride by Abhee Developers, also providing 2 and 3 BHK options with possession expected in 2026.
What are some ready-to-move or recently completed projects in Chandapura?
For those looking for ready-to-move options, Abhee Nandika by Abhee Developers offers 2, 2.5, and 3 BHK apartments, completed in January 2023, providing immediate possession. JR Garden Retreat 2 by JR Housing is a completed plotted development on Hosur Road, offering modern amenities and excellent connectivity for plot buyers.
What are the future development prospects for Chandapura?
Chandapura is poised for significant future growth, primarily driven by the expansion of Electronic City and the development of the Namma Metro Yellow Line. These infrastructure upgrades are expected to further boost connectivity, attract more businesses, and enhance the overall livability and property value in the locality, making it a promising area.