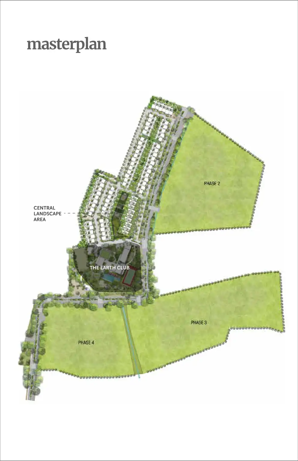
Loading...

Essence of Earth, Kanakapura Road, Bangalore | PropHunt | PropHunt